750 000 kr
Kontakta ansvarig mäklare för att lägga bud
2026-03-03 15:42
Budgivare 1: 750 000 kr
Leif Holmqvist
076-636 59 12
leif@bostadida.se
| Fastighetsbeteckning | GÖTA 18 |
|---|---|
| Pris | 900 000 kr |
| Hiss | Nej |
Byggklar större tomt
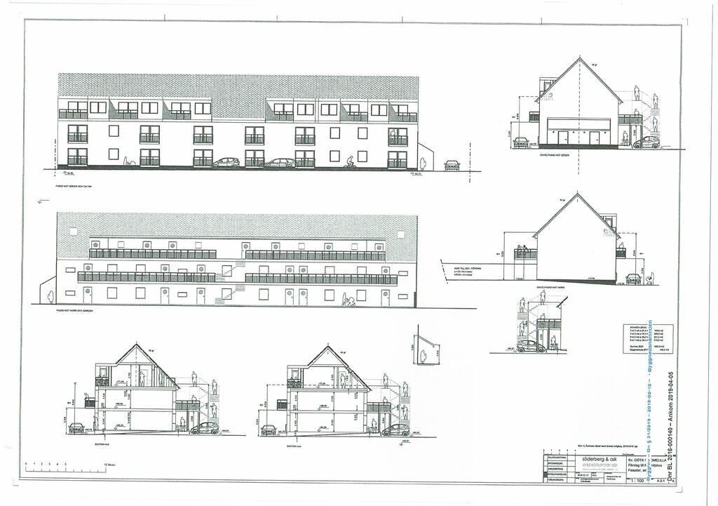
Torsgatan 11 | TomelillaByggklar större tomt om 1593 kvm, belägen centralt i Tomelilla. Bygglov meddelades av kommunen 2019 för uppförande av ett hyreshus i 2,5 plan med sammanlagt 18 lägenheter på 1002 kvm BOA. Detaljplanen medger bostäder vilket även ger dig möjlighet att bygga ditt drömhem med en lite större tomt och kanske till och med att bedriva någon verksamhet. Läget är mycket trivsamt med fin och blandad bebyggelse i närområdet samt med parkmark i direkt anslutning. De centrala delarna är mycket attraktiva för såväl stor som liten. Barnen har både förskola och skola samt fritidsaktiviteter i direkt närhet För pendlaren är läget optimalt med en kort promenad till tåg och busstationen samt snabb access till regionens huvudvägar Dessutom når ni centrum, mataffärer och butiker på bara ett par minuter.
Budgivning
Vi tillämpar i de flesta fall öppen budgivning vilket innebär att alla kan få information om vilka bud som lagts. Det är endast säljaren som kan välja att inte göra bud synliga. Det är säljaren som bestämmer över hur så kallade "dolda bud" ska hanteras. Om säljaren väljer att inte anta det dolda budet utan istället vill att mäklaren kommunicerar budet med övriga spekulanter så är mäklaren skyldig att följa säljarens instruktion.
Alla som lägger bud accepterar att fastighetsmäklaren senare lämnar ut information om lagda bud samt budgivarens namn och telefonnummer till den som köper bostaden.
Säljaren har fri prövningsrätt vilket innebär att hen avgör till vem‚ när och till vilket pris som försäljningen ska ske.
Om det inkommer bud efter avslutad budgivning men innan köpekontraktet är signerat är det fastighetsmäklarens skyldighet att framföra budet till säljaren.
Område: Tomelilla
I Tomelilla kommun kan du njuta av både Österlens natur, kultur och fridfulla byliv. Kommunen har cirka 13.000 invånare varav drygt 6.000 i Tomelilla by.
Ett litet axplock av vad som finns i omgivningen: Tomelilla Golfklubb ligger vackert inbäddad i det böljande österlenska landskapet. Tosselilla, alldeles utanför byn, är ett sommarland med stora grönområden i vacker natur – här kan hela familjen roas. För den kulturintresserade finns även Tomelilla konsthall - en av Sveriges vackraste konsthallar, byggd 1965 med galleri, unikt jazzarkiv, bildkonstskola, bibliotek och turistbyrå. I Tomelilla finns dessutom Världens minsta filmmuseum – ”Världens största Hasse & Tage-museum”. Närmaste sandstrand finns 16 kilometer bort - Nybrostrand.
I Tomelilla hittar du givetvis all tänkbar service som t ex butiker, apotek, systembolag samt vårdcentral, skolor och dagis. I byn finns också utomhusbad och en motorsportbana som arrangerar många tävlingar i rally- och motocross med såväl SM-, EM- och VM-status.
Tomelilla är även en knutpunkt både vad gäller tåg och buss. Både Malmö och Lund nås på cirka en timme då de endast är 7,5 mil respektive 5,5 mil bort. Närmaste flygplatser är Kristianstad, Malmö och Köpenhamn.
Slutligen ett litet citat från Linné: "Alltså kan ett land av så förträffligt klimat ej annat än vara det härligaste; ja det liknar så mycket Tyskland och Danmark, att man kunde säga, det havet liksom med våld skurit Skåne ifrån de södre länder och lagt det till Sverige".
Grundfakta
| Tomtarea | 1593 Kvm |
|---|
Byggnad m.m.
Taxeringsvärde
| Tomt | 1 716 000 |
|---|---|
| Totalt | 1 716 000 |
| År | 2025 |
| Kod | 310 |






